HOME
ロケーション
NEW
間取り
NEW
設備・仕様
NEW
エコロジー
NEW
セキュリティ
NEW
構造
NEW
HOME
ロケーション
NEW
間取り
NEW
設備・仕様
NEW
エコロジー
NEW
セキュリティ
NEW
構造
NEW
物件概要
来場予約
資料請求
閉じる
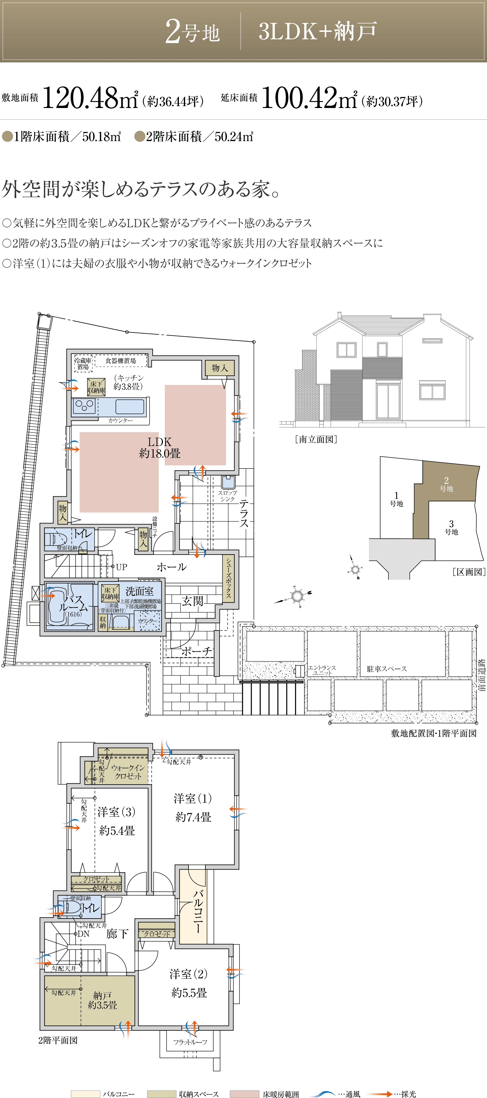
2号地
3号地
※掲載の各階平面図・立面図は、設計図を基に描き起こしたもので、官公庁の指導、施工上の都合等により変更が生じる場合があります。あらかじめご了承ください。
2号地
3号地
来場予約
資料請求
お問い合わせ
メニュー