HOME
ロケーション
進化する垂水駅前
ZEH住宅
地球環境のために住まいができること
先進性
太陽光発電&エネファーム
間取り
快適性にこだわったプランニング
構造
地震から住まいを守る
HOME
ロケーション
進化する垂水駅前
ZEH住宅
地球環境のために住まいができること
先進性
太陽光発電&エネファーム
間取り
快適性にこだわったプランニング
構造
地震から住まいを守る
物件概要
資料請求
閉じる
1号地
2号地
3号地
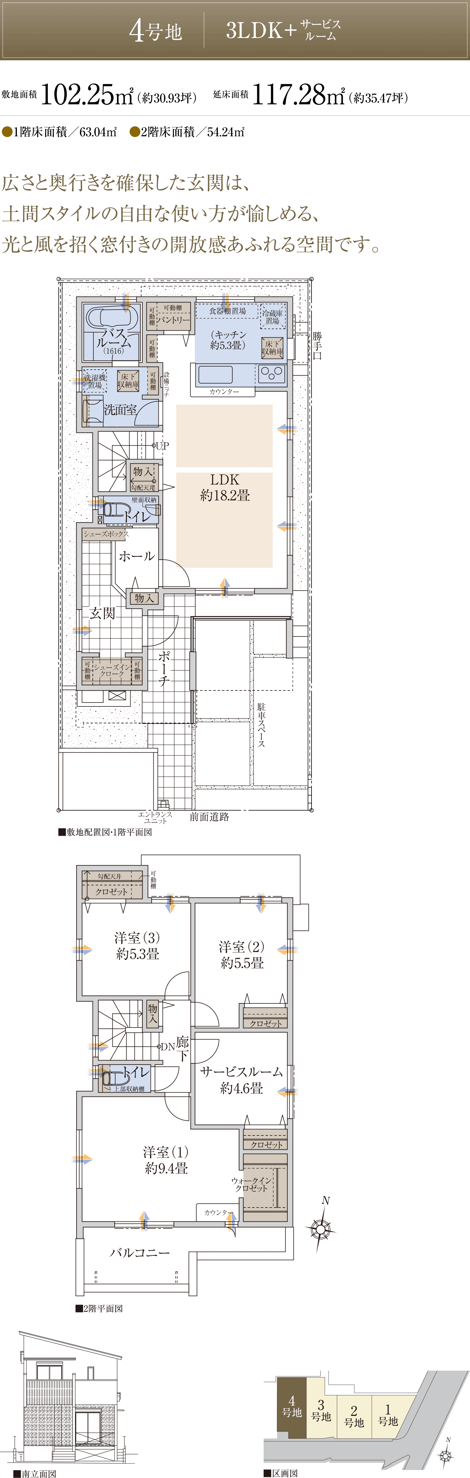
4号地
※掲載の各階平面図・立面図は、設計図を基に描き起こしたもので、官公庁の指導、施工上の都合等により変更が生じる場合があります。あらかじめご了承ください。
1号地
2号地
3号地
4号地
資料請求
お問い合わせ
メニュー